Fit-out of existing office shell, Greenwich, London

Greenwich, London

Fit-out of existing office shell, Greenwich, London 

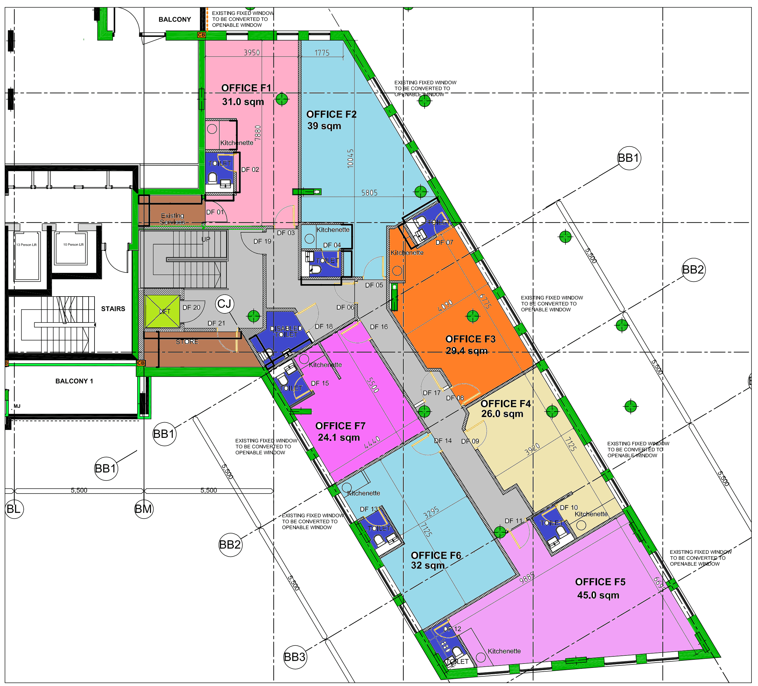
Subdivision of first floor of existing office shell into starter self-contained offices.